Ansprechendes EFH mit schöner Atmosphäre in ruhiger Lage!

Lage
Das Haus befindet sich in absolut ruhiger Lage von Ellund, welches zur Gemeinde Handewitt gehört. Die Nachbarschaft wird überwiegend durch gepflegte Einfamilienhäuser geprägt. Ellund überzeugt durch seinen ländlichen Charakter. Einkaufsmöglichkeiten, Kindergärten, eine Gemeinschaftsschule, ärztliche Versorgung, Friseure sowie Restaurants befinden sich in Handewitt, ca. 3 km entfernt. Die Fahrzeit nach Flensburg beträgt ca. 10 Minuten. Busverbindungen führen nach Handewitt, Harrislee oder Flensburg.
Objekt
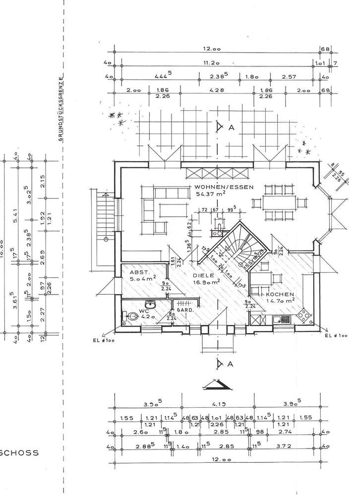
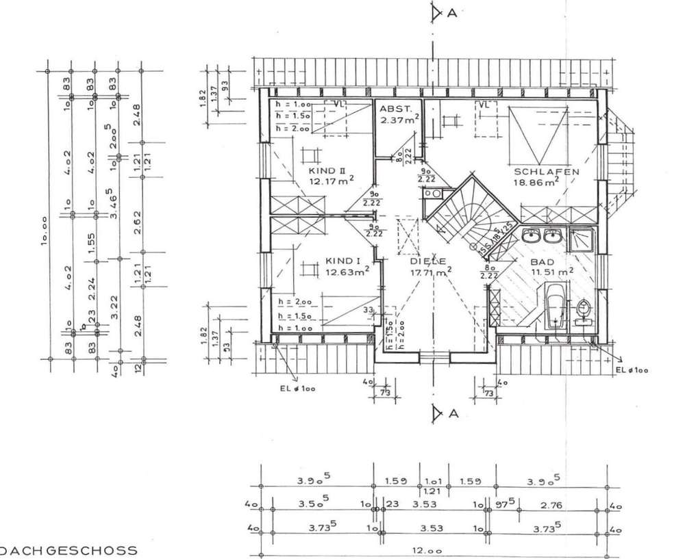
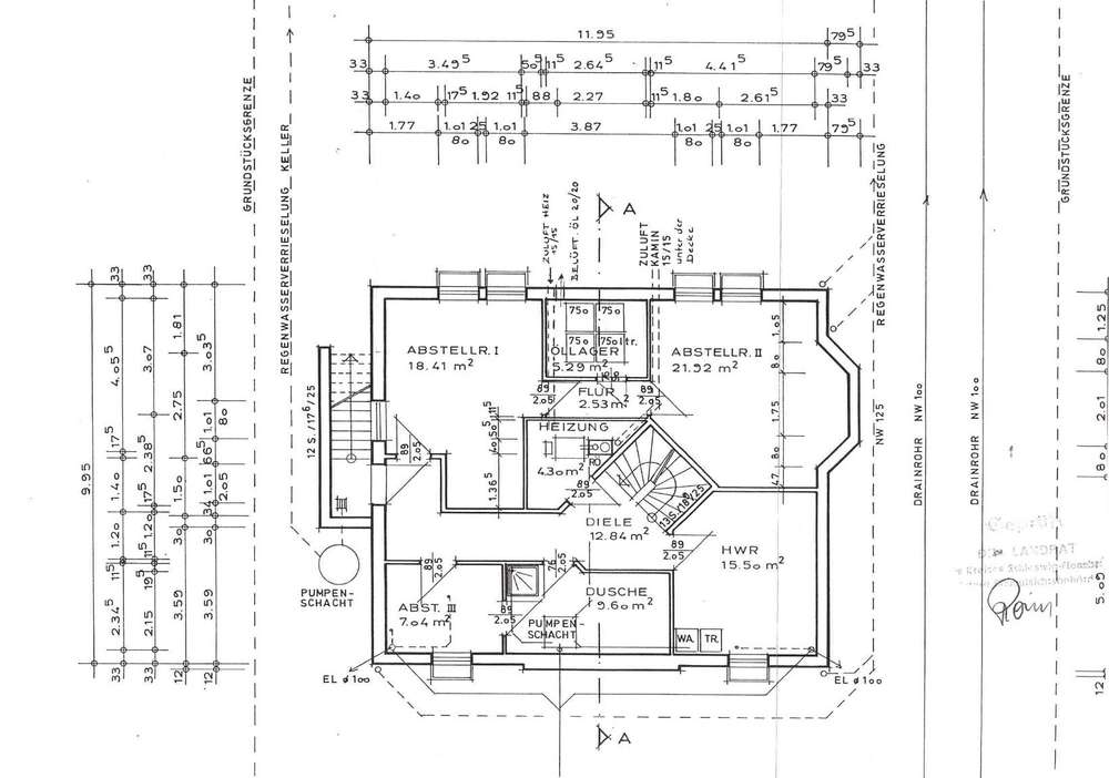
Manche Leute sagen, dies sei das schönste Haus in Ellund! Das Haus wurde 1994 im ansprechenden Friesenstil errichtet und laufend instandgehalten, so dass es sich heute in einem sehr guten Zustand präsentiert. Die Immobilie besticht unter anderem durch eine großzügige Raumaufteilung, was bereits beim Betreten des Hauses deutlich wird. Lebensmittelpunkt ist der Wohn-/Essbereich mit Kamin, der so gestaltet ist, dass er großzügig aber dennoch sehr gemütlich ist. Durch bodentiefe Fenster fällt viel Licht in die Räume und der Blick in den zauberhaften Garten. Der Garten sowie die Terrasse und der gläserne Wintergarten sind über mehrere Ausgänge zu begehen. An den Essbereich grenzt die Küche (komplett neu in 2013) an. Ferner befinden sich im Erdgeschoss die getischlerte Garderobe mit dem sich anschließenden Gäste-Bad (neu in 2019) sowie ein Abstellraum. Über eine Holztreppe gelangen Sie ins Obergeschoss, wo Sie die Diele, drei Schlafzimmer, eine Wäschekammer sowie ein Vollbad (neu in 2019) vorfinden. Ein besonderes Highlight bieten die Kinderzimmer. Über Leitern erreicht man kleine Räume über den Zimmern. Kinder werden es lieben! Über eine Auszugsleiter ist der nicht ausgebaute, jedoch gedämmte Teil des Dachbodens zu begehen. Leitungen für einen weiteren Ausbau sind bereits vorhanden. Das Haus ist voll unterkellert, wohnlich ausgebaut und für Bürotätigkeiten und Hobbyzwecke sehr gut nutzbar. Neben der Sauna mit Dusche gibt es u.a. ein Büro, einen Hauswirtschaftsraum und einen großen Abstellraum. Das Grundstück ist sehr schön eingewachsen, liebevoll angelegt und bepflanzt. Seitlich des Hauses befindet sich ein Doppelcarport mit Wallbox, PV-Anlage und kleiner Werkstatt. Aktuell wird das Haus mittels einer Ölheizung (3.000 l Tank) beheizt. Es bestehen Pläne, ein Ellunder Fernwärmenetz zu entwickeln, sofern hierfür Mehrheiten gefunden werden.
Sonstiges
Angaben Energieausweis: V, 129,1 kWh/(m² a), D, Öl, Bj. 1994 Fotos: Die Fotos wurden zum Teil mit einem Weitwinkel erstellt und können daher einen falschen Eindruck von den tatsächlichen Raumgrößen vermitteln.
Baujahr:
1994
Wohn- / Nutzfläche:
ca. 170,00 m²
Grundstücksfläche:
ca. 903,00 m²
Zimmer:
5
Energieausweistyp:
Verbrauchsausweis
Gebäude Typ:
Wohngebäude
Energiebedarf:
129.1 kWh/(m²*a)
Energieklasse:
Klasse D
Wesentlicher Energieträger:
Öl
Käuferprovision:
3 % inkl. MwSt.
Der Käufer zahlt, wie auch der Verkäufer, bei Abschluss des notariellen Kaufvertrages an Kontor Kjer Immobilien e.K. eine Provision i.H.v. 3 % inkl. MwSt. bezogen auf den erzielten Kaufpreis.
Kaufpreis:
529.000,00 €