Liebenswertes Stadthaus in bestem Zustand

Lage
Das Stadthaus befindet sich im Stadtteil Friesischer Berg, der überwiegend durch historische Bauten geprägt ist. Das Haus ist zentral, aber dennoch sehr ruhig gelegen. Die Flensburger Innenstadt mit seinen Geschäften und Restaurants, charmanten Innenhöfen, Museen, Theater und der Flensburger Hafen, wie auch Einkaufsmöglichkeiten, sind fußläufig zu erreichen.
Vorderansicht
Eingangsdiele
22
Flur und Treppenanlage
Wohnzimmer
Wohnzimmer
8
Wohnzimmer
Fernsehzimmer
Fernsehzimmer
Fernsehzimmer
Küche
Küche
Küche
Esszimmer
Esszimmer
Blick in das Esszimmer
Gäste-WC
Schlafzimmer EG
Treppe ins OG
Schlafzimmer
Badezimmer
Badezimmer
Schlafzimmer
Schlafzimmer
Schlafzimmer
Balkon
Raum DG
Raum DG
Bad DG
Bad DG
Garten
Terrasse
Überdachter Essplatz
Terrasse
Luftbild
Rückansicht
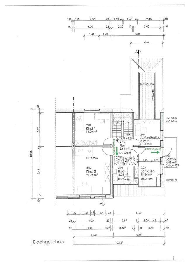
Grundriss DG
Grundriss OG
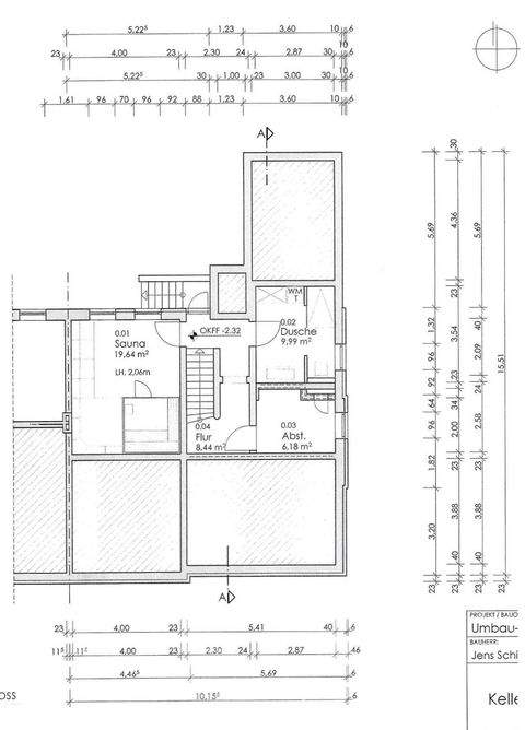
Grundriss KG
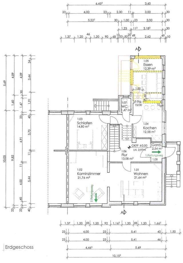
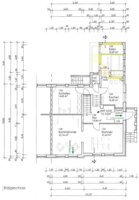
Grundriss EG (1)
Objekt
Das charmante Stadthaus wurde ca. in den 1920er Jahren errichtet und im Jahr 2018 durch die jetzigen Eigentümer umfassend modernisiert sowie um- und ausgebaut, so dass es sich heute in einem ausgezeichneten Zustand befindet. Bei der Modernisierung wurde viel Wert auf hochwertige Materialien und Liebe zum Detail gelegt. Den Eigentümern ist es in herausragender Art und Weise gelungen, den historischen Charme des Hauses mit den Anforderungen an modernes Wohnen zu vereinen.
Mit Unterstützung eines bekannten Flensburger Architekten sind Detaillösungen, wie z.B. das Esszimmer mit dem darunterliegenden und durch eine im Boden eingelassene Glasscheibe sichtbaren Weinkeller, oder auch die Brücke in den Garten, entstanden.

Über den Seiteneingang mit Windfang gelangen Sie zunächst in die Diele mit den hübschen Schachbrettmuster-Fliesen. Sehr durchdacht sind die bodentiefen Glaselemente, wodurch besondere Blickachsen entstanden sind. Zum Vorgarten gelegen, befinden sich die ineinander übergehenden Wohnbereiche, wobei der hintere über einen Kamin verfügt.
Von der Diele ist darüber hinaus die Küche zu begehen. Hier wurde der vorhandene Platz optimal ausgenutzt. Die Ausstattung der Siematic-Küche lässt keine Wünsche offen. Ein paar Stufen erhöht liegt das lichtdurchflutete Esszimmer (mit Ausgang in den Garten) und darunter der Weinkeller. Komplettiert wird das Erdgeschoss durch ein Schlafzimmer sowie ein Gäste-WC.

Eine repräsentative Holztreppenanlage führt in das Obergeschoss. Die Aufteilung besteht aus drei Schlafzimmern, wovon eines über einen kleinen Balkon verfügt, sowie ein Badezimmer. Im ausgebauten Dachgeschoss finden Sie ein weiteres Bad und einen sehr schönen und überaus hellen Raum zur individuellen Nutzung vor.

Ein Hobbyraum mit Sauna, Abstellräume, der Hauswirtschaftsraum sowie die Heizungsanlage und Technik befinden sich, ebenso wie ein weiteres Duschbad, im wohnlichen Keller.

Die Außenanlagen und der Garten spiegeln den hochwertigen Eindruck der Immobilie wieder. Mehrere Terrassen sowie ein überdachter Außensitz bieten die Möglichkeit, schöne Stunden im Freien zu verbringen.
Für PKW ist Platz in der Garage (mit Wallbox), sowie im Carport und auf der Auffahrt.

Ein beeindruckendes Stadthaus mit viel Platz für eine Familie, hochwertiger Ausstattung und überraschenden Detaillösungen!
Sonstiges
Hinweis: Die Fotos wurden zum Teil mit einem Weitwinkel erstellt und können daher einen falschen Eindruck von der tatsächlichen Größe der Räume vermitteln.

Angaben Energieausweis: B, 122,1 KWh (m² a), D, FW, Bj. 1920
Stichworte
Garage vorhanden, Carport vorhanden, Nutzfläche: 24,00 m², Anzahl der Schlafzimmer: 4, Anzahl der Badezimmer: 3, Anzahl der separaten WCs: 1, Anzahl Balkone: 1, Anzahl Terrassen: 1, Kellerfläche: 44,00 m², 3 Etagen, im Stadtteil gelegen, modernisiert: 2018
Baujahr:
1930
Wohn- / Nutzfläche:
ca. 180,00 m²
Grundstücksfläche:
ca. 893,00 m²
Zimmer:
7
Energieausweistyp:
Bedarfsausweis
Gebäude Typ:
Wohngebäude
Energiebedarf:
122,10 kWh/(m²*a)
Energieklasse:
Klasse D
Wesentlicher Energieträger:
Fernwärme
Käuferprovision:
2,5 % inkl. MwSt.
Der Käufer zahlt bei Abschluss des notariellen Kaufvertrages an Kontor Kjer Immobilien e.K. eine Provision i.H.v. 2,5 % inkl. MwSt. bezogen auf den erzielten Kaufpreis.
Kaufpreis:
995.000,00 €